Residential Project in New Mar Takla P8/1

product-name
$330,000
  155 m2
  3 bedroom + Maid room
  4 bathrooms
  2nd Floor
Register your interest
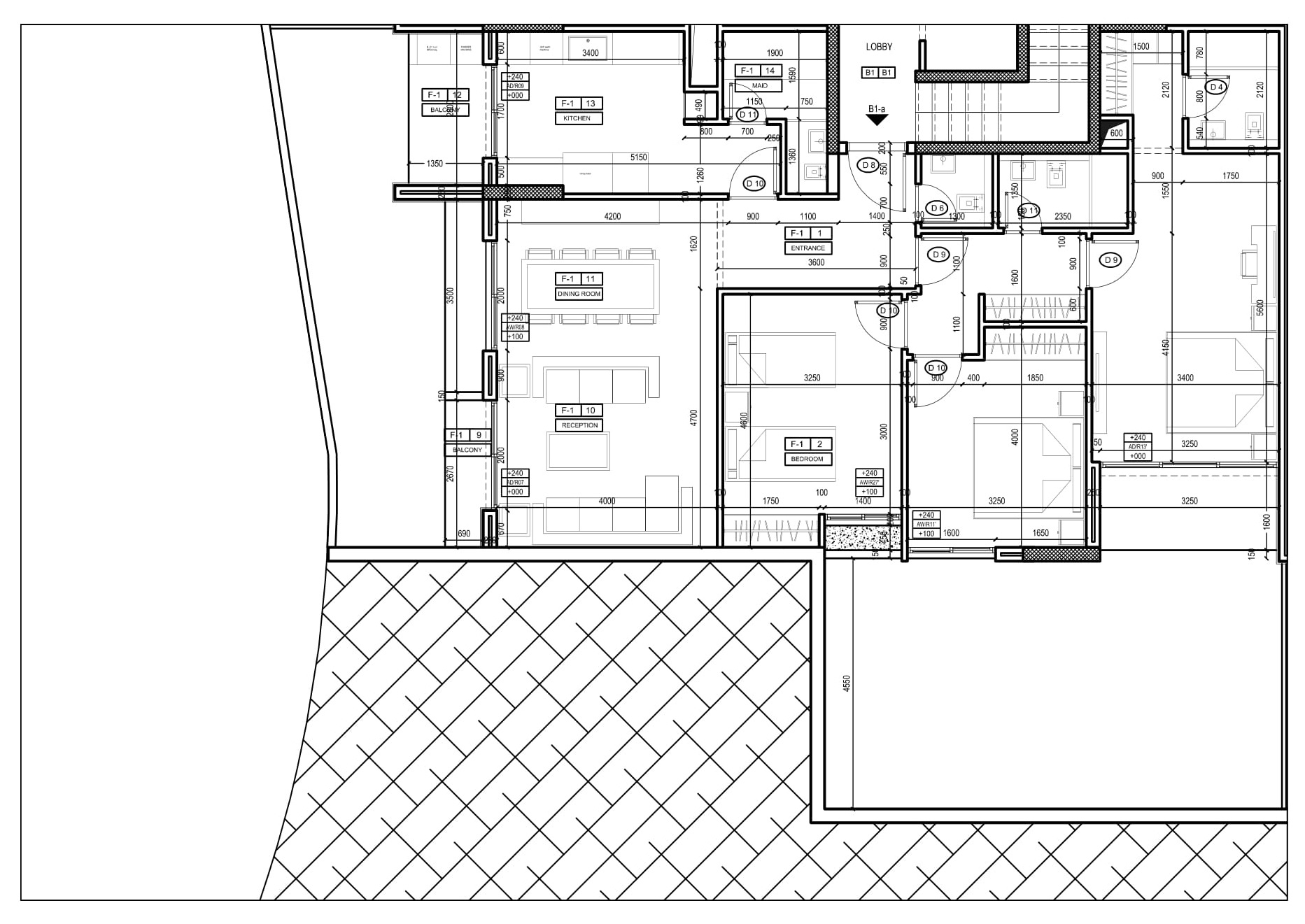
Floor Plan
The project is your ultimate getaway from the smog of the city while enjoying the urban life at its best!

With a remarkable internal green area of 750 sqm, the project consists of 6 buildings with 60 Apartments ranging from small studios of 75 sqm to spacious 175 sqm Duplexes.

Through its modern design using the mixed architecture of stone cladding and steel structure, materials and finishing of the highest quality, the project is a landmark in Hazmieh New Mar Takla setting new standards of contemporary living in the area.

The project allows tremendous services such as 2 parking per apartment and one storage room, 20 visitors parking, 24 hours high level of security, and fully landscaped gardens with a pedestrian access to the public from the garden to each building.

Description

Masonry Works
• 10 cm cement blocks for interior partition
• Double walls 10, 5,10 cm for outdoor walls
ALUMINUM WORKS
• Sidem 2000 aluminum profile for doors and windows with double glass
• Balustrades: laminated glass with aluminum handrails
• Monobloc in bedroom areas only, provision to be motorized
Electromechanical
Earthing System
• Independent Earthing System for each building with related Switches and circuit breakers
• Video Interphone
HVAC System
• Salon, Dining & Bed Rooms – All Copper and Drainage provisions installed
• Exhaust fans for toilets
• Exhaust outlet for kitchen hood
Heating System
• All plumbing installation in apartment up to boilers’ room excluding fixtures are installed
Water Supply System
• Polypropylene hot and cold water pipes inside the apartment
• Galvanized steel pipes for cold and potable water for external network
• Individual electrical water heater for each apartment with insulation
Drainage System
• Upvc pipes & fittings for sewage, rain water and venting systems
Sanitary ware
Master bedroom and Guest toilet:
• Sanitary wares (wall type): ideal standard, ROCA or equivalent
• Sanitary fixtures : Hansgrohe, ROCA or equivalent
Bedrooms and Maid room toilets:
• Sanitary wares (floor type): ideal standard, ROCA or equivalent
• Sanitary fixtures : Hansgrohe, ROCA or equivalent
Finishes
Kitchen
• Floor:1st choice matt ceramic tiles 60x60 cm
• Walls: plaster & paint, tiles over counter top
• Ceiling: plaster & paint
Bedrooms corridor
• Floor:1st choice matt ceramic tiles 60x60 cm
• Walls: plaster & paint
• Ceiling: false ceiling
Master bedrooms, bedrooms and balconies
• Floor:1st choice matt ceramic tiles 60x60 cm
• Walls: plaster & paint
• Ceiling: plaster & paint
Master bedroom's, bedrooms' and guest bathrooms
• Floor: 1st choice matt ceramic tiles 60x60 cm
• Walls: 1st choice glossy ceramic tiles 30x60 cm
• Ceiling: false ceiling .
Maid's room
• Floor: ceramic tiles 20x20 cm
• Walls: plaster & acrylic paint
• Ceiling: false ceiling
Maid's toilet
• Floor: ceramic tiles 20x20 cm
• Walls: ceramic tiles 20x20 cm
• Ceiling: false ceiling
External Finishes
• Elevations: Plaster and external stone cladding
• Roof: Bricks tents as per elevations' design
Wooden works
Doors
• Main entrance door: veneered oak wood panels as per architect's design
• Reception door: veneered oak wood panels as per architect's design
• Bedrooms' doors: MDF satain painted panels as per architect's design
Closets
• Egger chipboard laminated cabinets
Kitchens
• Egger chipboard laminated high resistance units & cabinets or equivalent
• Hard top –granite or equivalent
Elevators
Luxurious passengers elevator VVVF, ELIANOR or equivalent
CAR PARKING
2 covered parking spots for each apartment
Extra Specification Details
• Security gates &fences on 24 hours rate
• External lighting and decorative exterior lighting fixtures
• Special handicaps facility
• More than 20 visitor parking spots