Residential Project in Ballouneh P34/2

product-name
$180,000
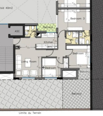
  120 m2 + 36 m2 terrace
  3 Bedrooms
  3 bathrooms
  First Floor
Register your interest
Floor Plan
Functional, convenient & affordable, the project is a two-block building that gives you the opportunity of owning a home in a calm, residential neighborhood. Apartments have been carefully designed to maximize space using high-quality building materials.
Close to Antonine School, Ballouneh Park and major supermarkets, stores, and restaurants, the location has several advantages and is ideal for small families.

Description

Masonry Works
• Reinforced concrete designed to sustain snow loads, severe climate conditions as well as strong wind and seismic loads
• Post-tension structure (PBB)
• External walls consist of 25 cm thick double wall including 5 cm thermal insulation
• All external walls are plastered with watertight adjuvant, all internal walls are smoothly plastered, crack free and straight to receive paint finish
• Internal walls are generally 10 cm thick hollow core block work, plastered properly to receive paint finish
• Most of landscaping retaining walls are reinforced concrete core.
Electromechanical
• 40 cu.m shared backup water storage in addition to 1 cu.m water tank per apartment
• Sanitary fixtures and fitting
1. For all bathrooms and WCs, Sanitary fixtures by Kohler, Duravit or equivalent
2. For mixers, all by Grohe, Hansgrohe or equivalent
• Electrical devices
1. Le Grand (regular range) or equivalent
2. Wires and cables: Liban cable
3. Electrical motors for aluminium.
• HVAC
1. Boiler and burner: Rocca, De Dietrich or equivalent, oil fueled
2. Closed expansion tank
3. Towel heaters for the bathrooms
4. White lacquered aluminum radiators for the rest of the apartment
5. Primary installation of coils for HVAC systems
Finishes
• Paint: All areas are to receive 3 layers of putty and 3 coats of high quality acrylic.
• External cladding
1. High end stone part cladding
2. Wood part cladding (ceramic)
• External doors and windows: High quality aluminum profile (Sidem 2000 or equivalent) system with double-glazing for thermal and noise insulation
• Flooring
1. European ceramic tiles for reception area and toilets
2. Wooden design ceramic tiles for bedroom area
3. High resistance epoxy paint for parking area
• Balustrades: 12 mm securite clear glass
Wooden works
• Mix of hard and veneered oak wood with high end polyurethane finishes
• For kitchens, melamine interior including soft close mechanism for drawers and leaves; including granite or resin counter top
CAR PARKING
1 parking spot for each apartment
Extra Specification Details
One storage room in basement floor