Penthouse in a Residential Project in Mar Mikhael P17/5

product-name
$1,872,253
  314 m2
  2 Bedroom + Maid room
  4 bathrooms
  12th and 13th Floor
Register your interest
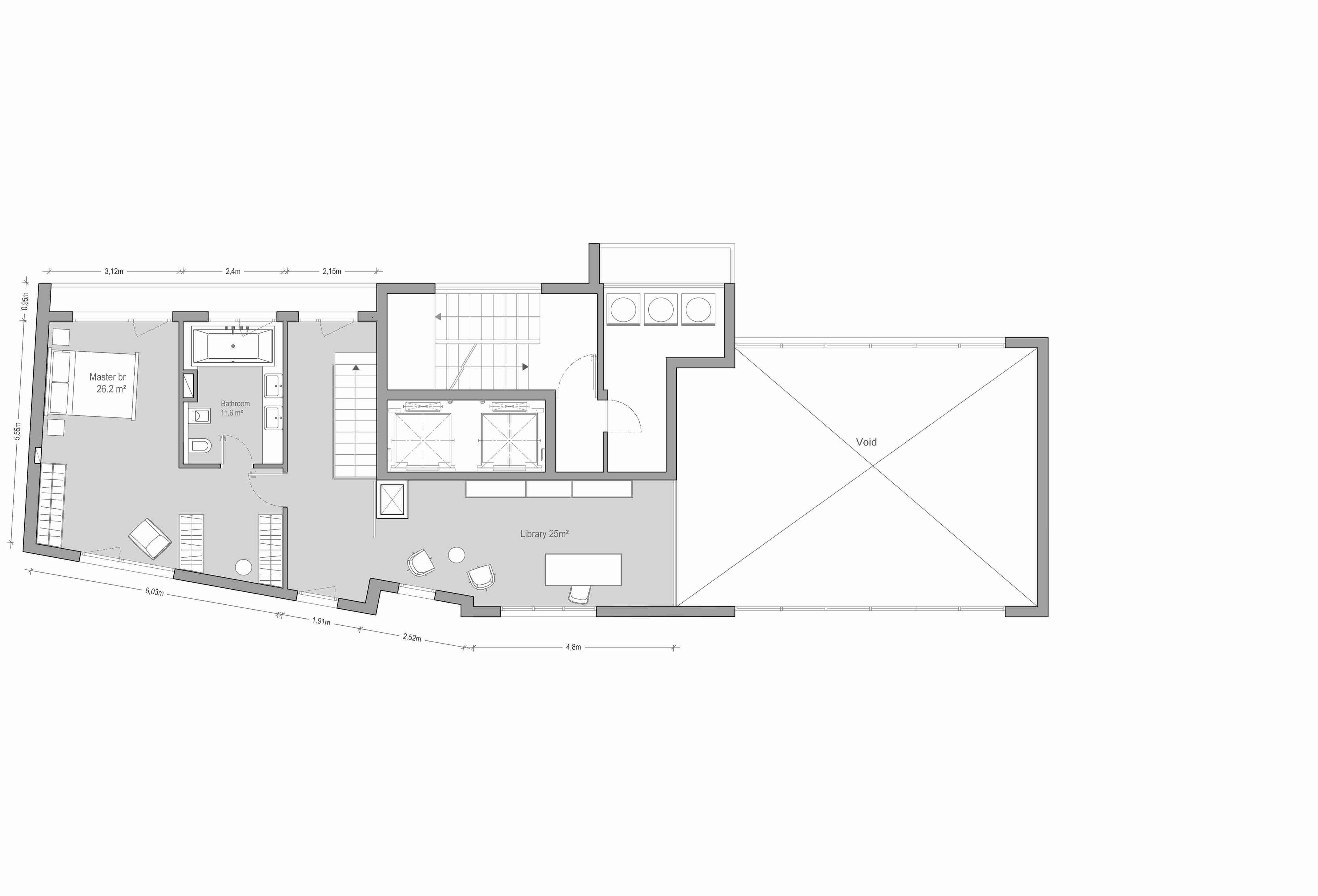
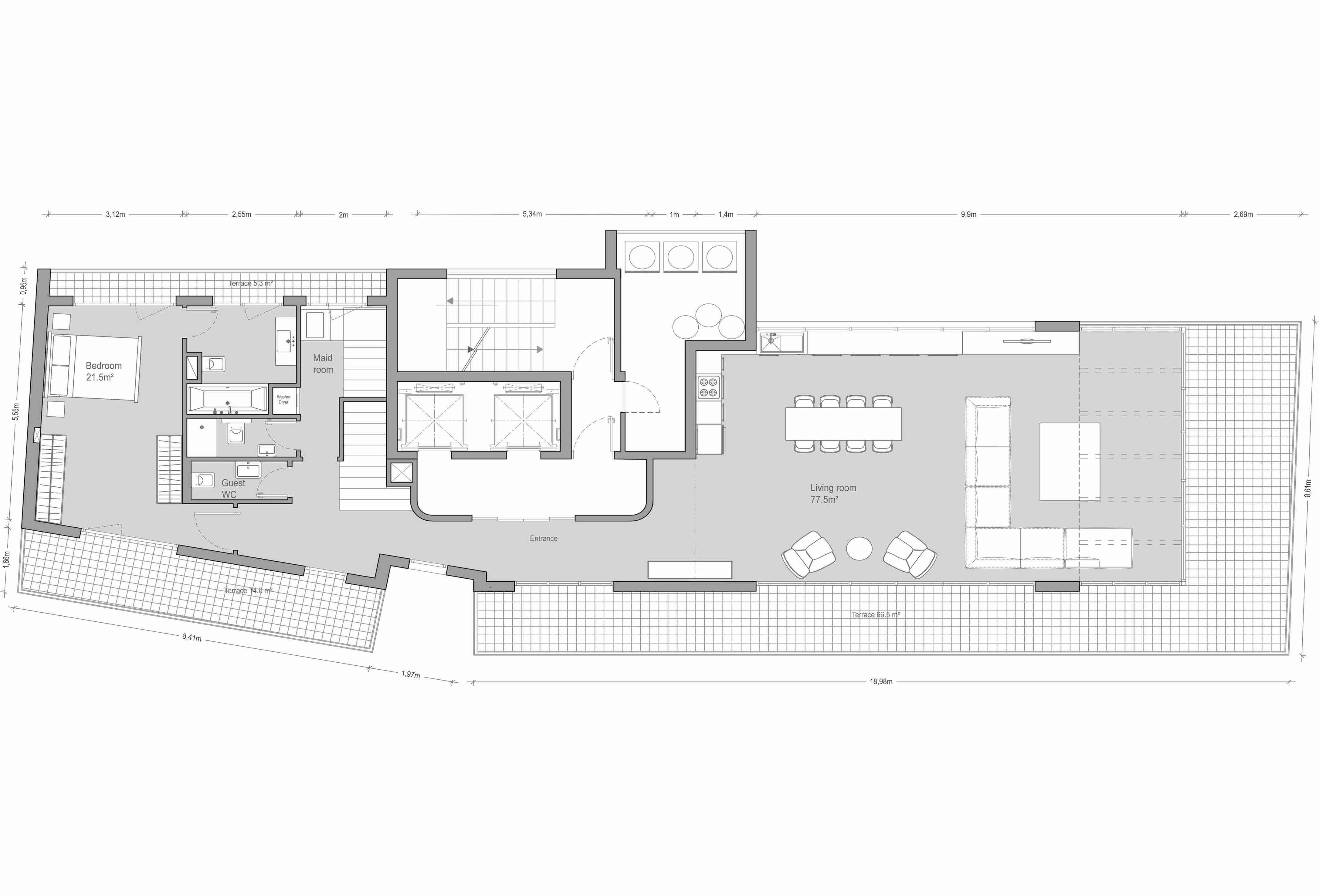
Floor Plan
The project offers a choice of apartment sizes and designs to suit all tastes. Apartments are notable for their intelligent approach to layout and use of space, as well as to natural light. Simplexes of 1, 2 and 3-bedroom with 3.10 m ceilings as well as lofts with 5.75 m ceilings creating generous volumes. Stunning living spaces featuring convivial, open kitchens, and distinct daytime and evening areas.
The building’s facade takes its cue from the curve of the street and surrounding buildings, creating a feeling of perfect synchronicity, with higher floors made less obtrusive through the use of terraces. The presence of cascading vertical plants connects the vertical and horizontal blocks of the façade while enhancing the street with a visual softness and greenery.
Throughout the communal areas of hallways, stairways, lobby and landings, The project reflects its status as a building designed for the comfort of its residents. A soothing design using quality materials creates an ambiance of perennial elegance.
The building is LEED Gold pre-certified.

Description

Masonry Works
•Concrete structure: reinforced concrete anti-seismic structure
•Masonry: External walls in concrete or cement blocks thermally isolated with glass wool. In common areas, partitions with cement blocks
•Waterproofing: two layers of bituminous SBS membrane for basement retaining walls. Cementitious membrane under tiles on balconies, kitchen and bathrooms
Electromechanical
•Water supply: Water treatment plant. Polypropylene pipes for cold water and multi layer fibre pipes for hot water. Hot water bottle powered with heat pump
•Sanitary Drainage: European UPVC pipes for drainage
•Sanitary fixtures and mixers: Duravit / Ideal Standard Sanitary in guest, master and children bathroom. Hans Grohe low consumption mixers in all bathrooms
•Air Conditioning: VRV system
•Heating: Floor heating powered by a VRV hydrobox
•Fresh air: Hygroadjustable controlled Mechanical Ventilation
•Electrical: 220/380 volts three phases with earthing system. Panel board and circuit breakers Hagger
•Wiring devices: GIRA STANDARD E2
•Generator: Two generators with Automatic Transfer Switch, sound insulation and fuel tank
Finishes
•Floor and Wall finishes: Oak engineered fist choice parquet in hall, living room, corridor and bedrooms. European first choice tiles in Master and children bathrooms. Washable low VOC paint on walls and ceilings
•External doors & windows: Technal Soleal aluminum profile with thermal break. Low E double 6mm-16mm-6mm with reflective coating to reduce sun radiation
•Main entrance and Lobby: Main building hall protected by a large front door in metal and glass as per architect design. Walls and floor finishing as per architect design
•Façade: External walls covered with mechanically fixed lime stone panels as per architect design
Wooden works
•240cm high doors, frames and architraves in solid wood, white mat lacquered finish
•European lock and stainless steel hinges, chrome handles
•Apartments Doors: Reinforced apartment doors with security lock. Finish as per architect design
Elevators
Mitshibishi variable speed lift, 7-person cabin with speed 1,6m/s, stainless steel decorated cabin
CAR PARKING
2 parking spots
Extra Specification Details
•Parking: Remotely controlled electrical door. Parking floor polished concrete coated with epoxy paint
•External Shutters: Aluminum Shutters as per architect design
•Videophone and digit code for main door access
•CCTV and fire alarms in basements, technical areas and lobbies
•Motion detector lights and emergency lights in common areas
•Double fire security doors in all basements and technical areas
•Mechanically ventilated basements comprising car parking space, garbage disposal room, pump and water treatment room, storage rooms for apartments, and acoustically isolated generator room